Машины подъемные передвижные

Машины серии МПП выпускаются в трёх модификациях. Все оборудование размещено в блоках, представляющих собой закрытое помещение, пригодное для будущей эксплуатации машины. Общее число блоков для машин: МПП-9 - четыре, МПП-17,5 - семь.

Механическая часть размещена для машин МПП-9 - в двух, МПП-17,5 - в трёх блоках. Каждый блок имеет свою раму, что облегчает монтаж и обеспечивает монтаж и обеспечивает сохранность сборки, выполненной на заводе.

Машину МПП-9 лучше всего использовать при проходке стволов малой и средней глубины. Машины МПП-17,5, в основном предназначены для проходки стволов глубиной 1000 м.

Технические характеристики подъемных передвижных машин

Тип машиныМПП-9МПП-17,5
Статистическое натяжение каната, кН 88,2 171,5
Размеры барабана, мм:00
диаметр 2500 2850
ширина 1350 1550
Скорость подъема, м/с 7 8
Диаметр каната, мм 25 33
Глубина подъема для бадей, м БПСМ-3-425
БПСМ-2,5-760
БПСМ-2 - 1070
БПСМ-5 - 680
БПСМ-4 - 1170
БПСМ-2 - 1270
Тип электродвигателя 630 630
Частота вращения, с16,4 16,4
Число двигателей 1 1
Тип редуктора Ц2Ш-900 Ц2Ш-900
Передаточное отношение 20 20
Масса, т:
машины без фундаментных,блоков и каната 110 177
наибольшего транспортируемого блока 41,1 49
Число фундаментных блоков 11 20
Масса фундамента, т 130 240

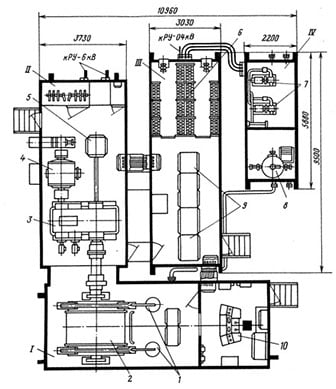
Подъемная машина МПП-9:

1 - тормозные приводы;
2 - коренная часть;
3 - редуктор;
4 - двигатель;
5 - АЗК;
6 - роторные сопротивления;
7 - компрессоры;
8 - воздухосборник;
9 и 10 - шкафы и пульт управления соответственно

Отгрузка МПП

Область применения передвижных проходческих подъемных машин

Показатели МПП-9

Тип бадьиБПС-2БПСМ-2БПСМ-3
Диаметр каната, мм 25 25 25
Временное сопротивление разрыву, МПа140015001600
Максимальная длина отвеса каната, м 1125 1138 144 498
Строительная длина каната, м 1260 1273 479 633

Показатели МПП-17,5

Тип бадьиБПСМ-3БПСМ-3БПСМ-3БПСМ-3БПСД-4,5БПСД-4,5БПСД-4,5БПСД-4,5БПСД-4,5БПСД-4,5
Диаметр каната, мм 272727 30 333333333333
Временное сопротивление разрыву, МПа1400150016001400140014001500150016001600
Максимальная длина отвеса каната, м 463 11351135113933740652755611141142
Строительная длина каната, м 603 12751275127951754666769612541282

Подъемные машины серии JK

Имеется возможность изготовления машин любых типоразмеров согласно ТЗ заказчика

Технические характеристики подъемных машин серии JK
(в блочно-модульном исполнении)

Подъемная машина JK-2.85 х 1.55PS
(аналог МПП-17,5)
Подъемная машина JK-2.5 х 1.35
(аналог МПП-9)
Статич-ое натяжение каната, кН 171,5 88,2
Канато-емкость барабана, м1-й слой – 411м
2-й слой – 826м
3-й слой – 1246м
1-й слой – 425м
2-й слой – 760м
3-й слой – 1070м
Скорость подъема,м/с 8 7
Диам. каната, мм 33 25
Мощность эл. двигателя
(2 ед.) – 630кВт
380 V
740 об/мин
630кВт
380 V
740 об/мин

ООО "ШахтРесурс"
ИНН 6155059826
КПП 615501001
ОГРН 1106182002740

Music band


+7 (8636) 25-46-84

пн-пт с 8:00 до 18:00

info@sharesurs.ru

Общий email по всем вопросам

© Copyright 2010-2024 ШАХТРЕСУРС - Все права защищены

Яндекс.Метрика